BxB and the Infill Building
There are three plots on Tollers that are being developed...
Plot A is in the area between the new blocks of flats that were built on the old garages in 2015. It was a grassed area occupied by our Community Centre and some pretty flowering cherry trees.
The latest proposal for this site is for 14 three bedroom houses...


Plot A
(And no, I have no idea what a "Dwell Space" is, or indeed, a "Rain Garden.")
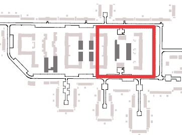
Plot B is in the centre of the two "C" shaped blocks of flats at the middle of the estate, either side of the path that runs between Goodenough Way and Ellis Road.


It is not clear how much access there will be for emergency vehicles such as fire engines to access the backs of the current flats, (where I understand their kitchens are,) in the event of a fire, explosion, building collapse or other emergency.
It is understood Croydon Council are intending to place many of these new properties for sale on the open market. It's difficult to imagine anyone being attracted by a property where the only view from EVERY window is the backs of the current flats! Which is the case here.
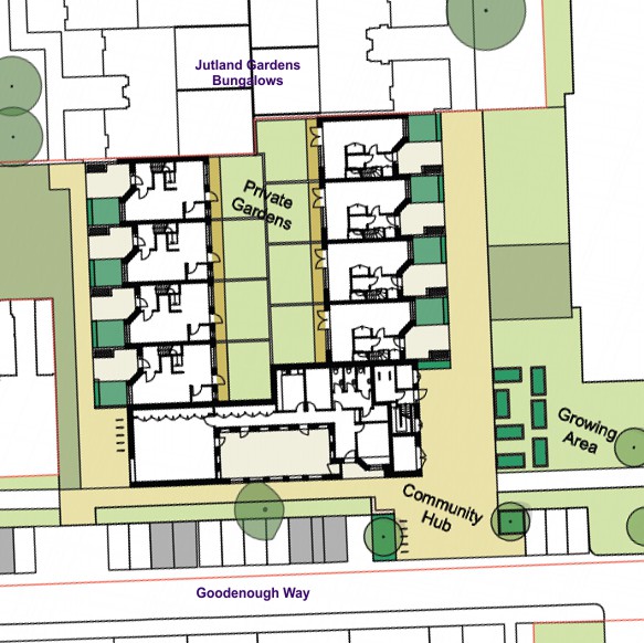
Plot C is the area at the southern end of Jutland Gardens, formerly occupied by parking bays, garages, and a parking area where the mostly elderly residents of Jutland Gardens could park their mobility assist vehicles. As well as housing, this site is also the intended location for the new Estate Community Centre.


This 3 storey development is directly to the south of the bungalows in Jutland gardens. With tall flats already to the east and west, this will mean the poor residents of the Goodenough end bungalows will receive no sunlight whatsoever on their properties. They will always be in shadow.
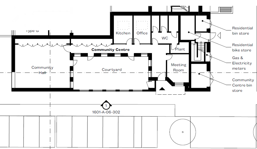
This is the plan for our New Community Centre. According to the plans, this is not going to be very big. A sense of scale can be assessed by comparision with the parking bays.

Images used with kind permission of Mæ Architects. www.mae.co.uk
